Page suivante
Page précédente
Saint-Tropez (83990)

Appartement 4 pièce(s) 3 chambre(s) 83.84 m²

3
83,84 m² ㎡
770 000 €
Réf M36750
Grand appartement avec une vue dégagée

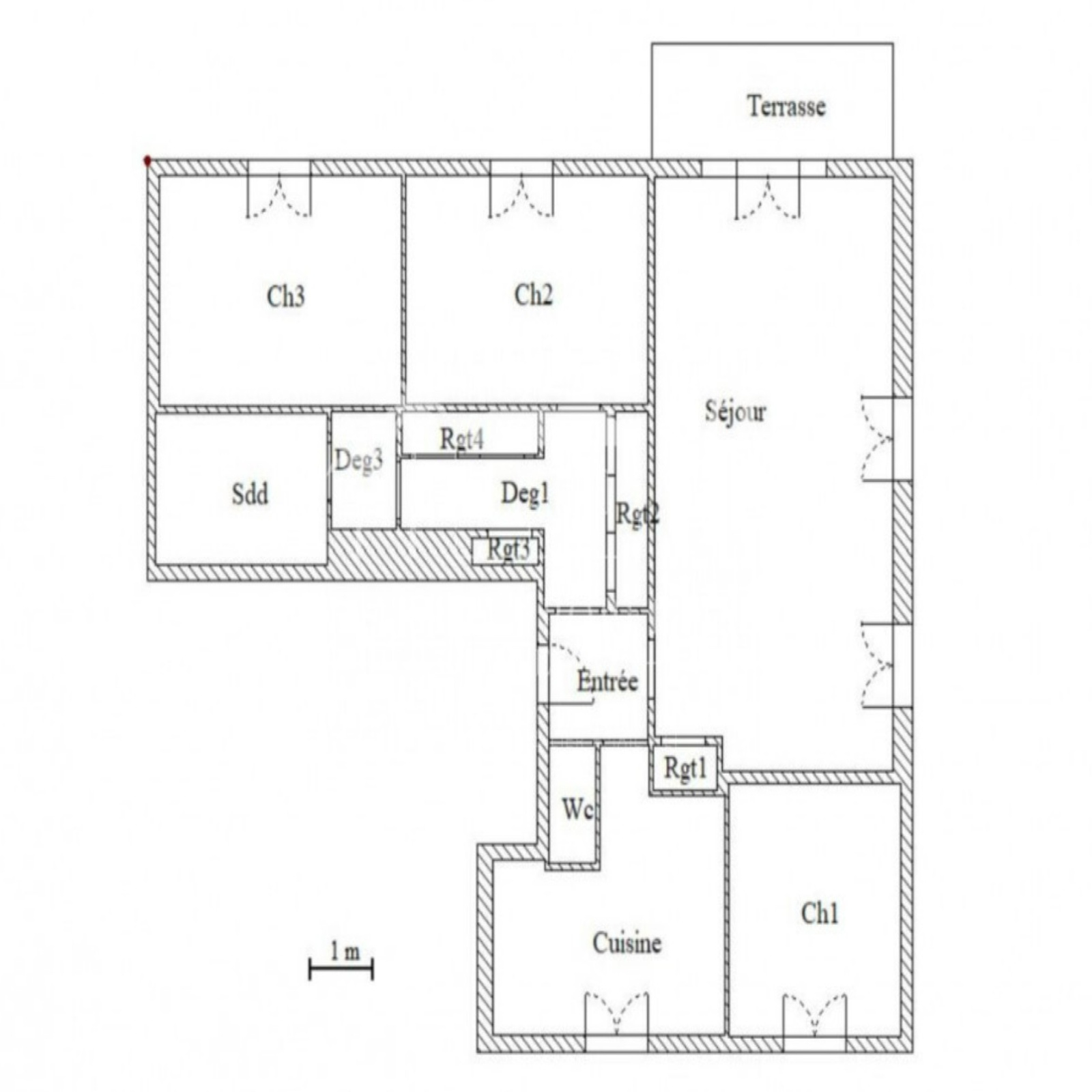
Un grand appartement familial, type 4 de 83.84 m² loi Carrez, vue campagne et un aperçu mer, traversant, lumineux exposition Sud/Sud-Ouest, sans vis-à-vis. Situé dans une résidence calme et sécurisée en centre-ville, à 800 mètres à pied du Port, de la Place des Lices et de la plage. Parfait pour tout faire à pieds.

 

Composé d'un hall d'entrée donnant sur une grande pièce à vivre climatisée comprenant un espace salon, salle à manger, ouvrant sur une terrasse de 5.46 m², une cuisine séparée entièrement équipée (rénovée en 2020), un couloir avec plusieurs placards, trois chambres d'une surface de 10.5 m² environ, une salle de douche et un WC indépendant.

 

Travaux de rénovation à prévoir. Le bien et complété par une cave et la possibilité de louer un box au sein de la résidence. Idéale pour un pied-à-terre en famille ou un investissement en location saisonnière.


Appartement soumis aux statuts de la copropriété, composée de 110 appartements (nombre total de lots : 426)Charges courantes prévisionnelles : 177 euros / mois, soit 2 124 euros à l'année.Pas de procédure relative aux copropriétés en difficultés

Bilan énergétique

Diagnostics énergetiques
A propos de ce bien Caractéristiques de ce bien
  • Surface 83,84 m²
  • 3 chambre(s)
  • 1 salle(s) d'eau
  • cuisine séparée (équipée)
  • exposition Sud-Ouest
  • 3ème étage
  • 4 étage(s)
  • vue Mer / Campagne
  • cave
  • balcon
  • interphone

Info copro

Copropriété
  • Copropriété Oui
  • Nombre de lots 426
  • Quote part annuelle des charges 2 124 €
  • Statut du syndic Pas de procédure en cours

Financier

Informations financières
Prix de vente honoraires TTC inclus 770 000 €
Charges 177 €
Taxe foncière annuelle 1 195 €

Autour du bien

Découvrez le quartier

Simulation

Calcul des mensualités
* Champs obligatoires
MARRES PROPERTIES Agence